Palazzo in vendita

Trapani, Via XX Settembre - Gb Fardella
€ 195.000
10 locali 10 locali
350 Mq 350 Mq
4 bagni 4 bagni

Palazzo in vendita

Trapani, Via XX Settembre - Gb Fardella

Descrizione annuncio

Nel tessuto urbano più dinamico e ricercato di Trapani, a pochi passi dal cuore pulsante di Via Giovanni Battista Fardella, sorge una straordinaria opportunità immobiliare che incarna il connubio perfetto tra storia, centralità e potenzialità di sviluppo. La Tecnocasa Trapani Centro è lieta di presentare in esclusiva la vendita di un intero stabile indipendente situato in Via XX Settembre, una posizione privilegiata che coniuga la vivacità del centro commerciale cittadino con una maggiore riservatezza e una superiore facilità di accesso rispetto alle arterie principali.
Questa proprietà non è semplicemente un edificio, ma un’operazione immobiliare di rara reperibilità nel mercato attuale. Il corpo di fabbrica, caratterizzato da una struttura solida e da metrature generose, si sviluppa su più livelli fuori terra, offrendo una versatilità progettuale che spazia dalla residenza di lusso all'investimento ricettivo di alto profilo. Lo stato attuale dell’immobile, interamente da ristrutturare, rappresenta il valore aggiunto più significativo: una 'tela bianca' nelle mani di un investitore lungimirante o di un privato che desidera cucirsi addosso una dimora monumentale, definendo ogni singolo dettaglio architettonico e funzionale.
L’assetto distributivo dello stabile è ideale per una valorizzazione moderna. Salendo attraverso l’ampio vano scala interno si raggiungono i quattro appartamenti distribuiti sui piani superiori. Ogni unità gode di una distribuzione degli spazi che permette il frazionamento o la creazione di ampi open-space luminosi, grazie alla doppia esposizione e all'altezza dei soffitti tipica delle costruzioni di pregio dell'epoca.
Il potenziale del prodotto finito è straordinario. La metratura complessiva consente di immaginare diverse destinazioni d'uso: dalla realizzazione di una prestigiosa palazzina plurifamiliare, ideale per nuclei che desiderano vicinanza e indipendenza, alla creazione di un complesso di appartamenti boutique destinati al mercato degli affitti brevi o della rivendita frazionata. In un’epoca in cui il turismo a Trapani vive una crescita esponenziale, trasformare questo corpo di fabbrica in una struttura ricettiva di design, dotata di ogni comfort e magari di un ascensore interno, garantisce un ritorno sull'investimento tra i più alti del settore.
Vivere o investire in Via XX Settembre significa possedere una quota del futuro di Trapani. La vicinanza al porto, punto di collegamento per le Egadi, e la prossimità ai migliori servizi, scuole e aree pedonali del centro, rendono questa palazzina una scelta di valore assoluto. Acquistare oggi questo stabile significa anticipare il mercato, assicurandosi una proprietà cielo-terra indipendente in una delle parallele più ambite del 'salotto' trapanese. Non è solo un acquisto immobiliare, è la costruzione di un’eredità o il coronamento di un business di successo nel cuore della città. Un'opportunità imperdibile per chi esige il massimo in termini di posizione, indipendenza e cubatura.

Mostra tutto

Nelle vicinanze

Trasporto pubblico Trasporto pubblico
Trapani
Trapani
500 m
Trasporto pubblico
170 m
Largo Ilio
Largo Ilio
620 m
Trasporto pubblico
1,3 Km
Ricariche auto elettriche Ricariche auto elettriche
Distributore IP
620 m
Scuole Scuole
Scuole
810 m
Scuola primaria "Giuseppe Mazzini"
1,7 Km
Università degli Studi di Palermo
1,8 Km
Scuola secondaria di primo grado "Nunzio Nasi"
1,8 Km
Farmacia Farmacia
Garraffa Vincenzo
200 m
Polizzotti Luisa
270 m
Guaiana Giovanna
350 m
Vivona Antonio
520 m
Aiuto Maria e Sabrina s.n.c.
670 m
Ospedali Ospedali
Presidio Ospedaliero Sant'Antonio Abate
2,5 Km
Supermercati Supermercati
Supermercati
370 m
MD
400 m
Il Centesimo
580 m
Coop
580 m
Eurospin
1,2 Km
Negozi Negozi
Biologica
200 m
Gluten free
1,1 Km
Quick
1,2 Km
Minihy Mode
1,4 Km
Negozi
1,7 Km
Bar Bar
Il Barbagianni
830 m
Rakija
1,1 Km
Balley bar
1,2 Km
Chocolate Ferlito - Gelateria
1,4 Km
Gelateria Gino
1,4 Km
Ristoranti Ristoranti
Il Tortellino di Oddo Ignazio
180 m
Che pizza
220 m
Palazzo Platamone
620 m
210 Grammi
780 m
Al Bastioni Ristorante Pizzeria
820 m
Mostra tutto

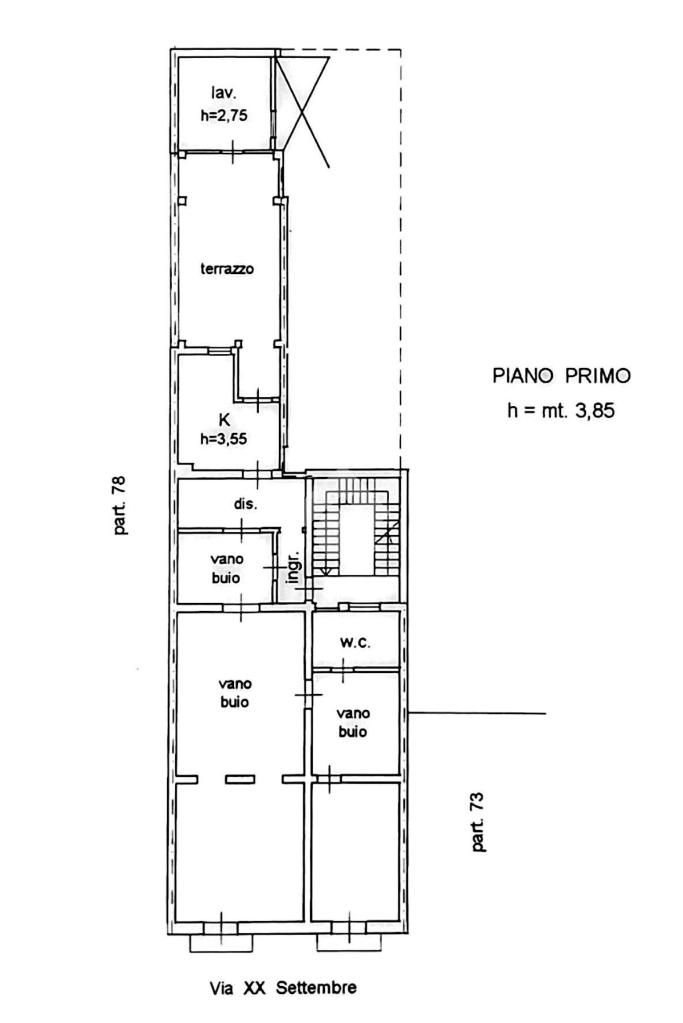
Caratteristiche

Rif.:
61201052
Piano:
1 di 3 (Piano su più livelli)
Box:
1
Balconi:
4
Terrazzi:
1
Camere da letto:
6
Mostra tutto
Prezzo Prezzo
€ 195.000
Rata mutuo Rata mutuo
€ 922 / mese
Spese annue Spese annue
€ 0
Proponi il tuo prezzoProponi il tuo prezzo

Classe Energetica

G
G
G
G
G
G
G
G
G
EP invernale del fabbricato:
EP estiva del fabbricato:
Anno di costruzione:
1940
Riscaldamento:
Assente

Ti interessa visionare l'immobile?

Fissa un appuntamento  Fissa un appuntamento

Richiedi informazioni

Clicca su Leggi per aprire l'informativa
* Questi campi sono obbligatori

Calcola il tuo mutuo

Semplice e senza impegno
Anticipo

( % )
Mutuo

( % )

pochi semplici passi

inserisci i tuoi dati
Questionario completato
Grazie per aver richiesto un appuntamento senza impegno con un nostro Consulente del Credito e Assicurativo.

Hai inserito correttamente tutti i dati necessari e a breve riceverai una e-mail con un link da convalidare per inviare i tuoi dati.
Affiliato
Trapani Centro Srl
Via Archi, 2 91100 Trapani (TP)

Il nostro staff


  • Roberto Puccio
    Affiliato

  • Irene Campo
    Collaboratrice

  • Giuseppe Cusimano
    Responsabile

  • Giorgia Di Pasquale
    Coordinatrice

  • Francesco Pellegrino
    Collaboratore

  • Serena Scianna
    Responsabile

  • Vincenzo Vultaggio
    Collaboratore
Via Archi, 2 91100 Trapani (TP)
Zona: Archi-Fardella-Virgilio-Centro Storico
Mostra su mappa
Orari: dal lunedì al venerdì dalle 9:00 alle 13:00 e dalle 15:30 alle 20:00. Il sabato, dalle 9:00 alle 13:00
Affiliato
Trapani Centro Srl
Via Archi, 2 91100 Trapani (TP)

2026 Tecnocasa Franchising S.p.A. - P. IVA 08365160152 - Via Monte Bianco 60/A 20089 Rozzano (MI). Ogni agenzia ha un proprio titolare ed è autonoma. Privacy policy | Policy utilizzo | Cookie policy